欢迎来电咨询,预约销售人员,专业一对一热情服务,让您用专业眼光去买房。(来电尊享购房大礼包)
2025最新首页丨楼盘详情丨售楼处丨样板间丨精选笔记丨优缺点分析丨在售房源丨周边配套
近日,备受关注的黄杉木店2107-03地块,紫京宸园项目正式报规,瞬间成为北京楼市的焦点话题。
从规划总图上来看,项目占地5.43公顷,整体规划15栋7-25层洋房/小高/高层住宅,总计815户。
如果按照地上建面来计算,套均建面约为174平米。根据此前官方透露信息来看,产品规划上还是以大户型为主,主打130-400平米,瞄准改善客群。
层高约在3.1-3.4米,空间感会比较好。户型设计上,南向为内嵌阳台、北向为设备平台,边户配有大量的弧形转角设计,预计户均为三面宽起步,采光与视野俱佳。
其中,20层以上的高层,集中九游官方入口在西北角的3#楼、中央区域6#楼,以及5#楼、10#楼。
10层以下的洋房主要分布在2#和15#楼,且整个社区内仅有2#楼为7层设计。
如果从日照上来看,4#楼的东侧边户可能采光视野上会比较一般。因为当前总归图上,并未标注具体的楼间距信息。
作为社区核心楼栋,6#楼楼王设计十分出彩。主楼高78.6米,为23层设计,两侧边户楼高68.4米,为20层。
从效果图推测,21-23层或为400平米大平层产品,且21层室外空间设有大面积延展露台,正对小区大门与下沉庭院,观景视野独一档。
此前一直传言,黄杉木店地块的得房率会有所收紧。目前,据燃烧弹了解,项目整体得房率还是能够保持在正常水平的,将在90%以上。
另外,从整个社区来看,架空层的面积略小,规模不大,仅为300㎡。且只有6#楼首层有架空层设计。
除此之外,整个社区的园林景观也集中在6#楼和13#楼中间,面积可观。且楼王6#楼的前后均被园林景致环绕。
紫京宸园是中建智地的第三座宸园,目前,酒仙桥的北京宸园已经售罄,望京的中建宸园近日也迎来交付,实景园林和水景很是不错。
虽然目前紫京宸园效果图上未展示水景细节,但从前两个项目的园林和瀑布水景来看,紫京宸园还是可以狠狠期待一下的。
毕竟,项目也透露过,紫京宸园在产品力上的呈现,会在北京宸园的基础上再做一个提升。
另外,燃烧弹目前获悉,紫京宸园项目会在9月举办产品发布会,对于产品的更多细节会有整体的亮相讲解。
产品风格上依旧延续了宋式美学。建筑外立面采用的是石材+铝板拼接与玻璃幕墙的组合设计,这也是近期入市项目多采用的一种风格。
从西侧社区景观大门上来看,下沉庭院的设计面积不小,预计采用“三进制归家”的仪式感。
车行、人行及非机动车出入口分布合理,紧急消防通道保障安全,整体动线比较清晰。
根据地块规划要求的街坊路建设,在社区的东侧位置,但从规划总图中没有看到街坊路中有机动车入口。
回溯项目背景,2025年4月底,中建智地联合体以126亿元底价斩获黄杉木店、捆绑孙河地块,楼面价约5.45万元/平,达到近两年朝阳宅地单价最高纪录。其中,南侧的黄杉木店2107-03地块(紫京宸园)由中建智地操盘,北侧的2107-01、02地块(璞樾)由金茂+越秀联合操盘,朝阳城发则参与商业地块运营。
作为朝青板块罕见的新增住宅项目,紫京宸园5.43公顷的占地面积与约21.43万㎡的总建筑面积,在朝青板块十年无新地供应的背景下就更显珍贵了。
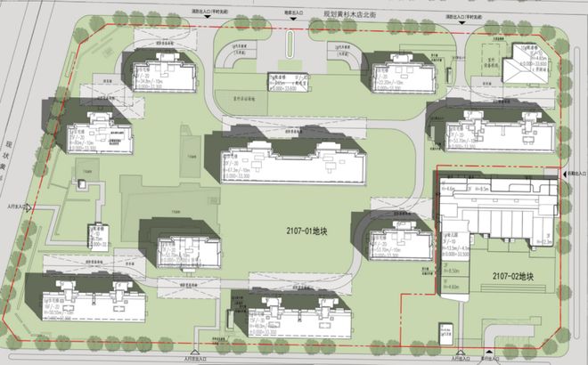
璞樾项目在紫京宸园次日报规,从规划总图中可以看出,璞樾共规划了9栋7-25层洋房/小高层/高层,共424户,户均建面约185平米。
此前大家比较关注的配建幼儿园地块位置,从效果图上来看位于东南角,即2107-02地块,占地面积5253平米。
欢迎来电咨询,预约销售人员,专业九游官方入口一对一热情服务,让您用专业眼光去买房。(来电尊享购房大礼包)
2025最新首页丨楼盘详情丨售楼处丨样板间丨精选笔记丨优缺点分析丨在售房源丨周边配套
特别声明:以上内容(如有图片或视频亦包括在内)为自媒体平台“网易号”用户上传并发布,本平台仅提供信息存储服务。
清华2025届共4000名新生,其中高考统招仅1885人,占比不到一半
1-2!89分钟被逆转绝杀 12.5亿豪门惨遭爆冷 神锋百场88球创纪录
1-0!英超惨烈焦点战:3大核心伤退 任意球世界波 10.5亿豪门登顶
致力于全北京新房,从土地流通开使,到项目开盘销售结束,全程跟踪,为网友提供最全最新资讯。
《编码物候》展览开幕 北京时代美术馆以科学艺术解读数字与生物交织的宇宙节律
万万没想到:苹果已停售MagSafe外接电池可用于谷歌 Pixel 10 Pro
简体中文

