九游官方入口九游官方入口您当前使用的浏览器版本过低,可能存在安全风险,建议升级浏览器,或者用以下浏览器浏览
您也可以直接使用焦点APP或微信小程序浏览
上海杨浦建发海宸售楼处电话:【预约看房热线】建发海宸售楼处电线【售楼处电话/地址】建发海宸售楼处电话:【开发商认证】
上海建发海宸官方售楼处电线即可咨询楼盘详情_房价、户型、周边配套及交通、地址
深耕上海20载,筑就30余明星项目,2025年建发房产第六次落子新江湾,以“海纳百川,源流东方”为理念,打造海派东方灯塔钜作——建发海宸,再次印证了长期主义的坚定与远见!
真正的产品主义,从不停留在口号.建发海宸对海派文化的当代转译,堪称教科书级别!
建发海宸取意上海市花白玉兰的素蕊灵韵,打造出独具辨识度的玉兰门庭与繁花立面,海派大师为大门精雕非遗掐丝珐琅门钹,三大东方臻色描绘海派建筑艺境,这不止是海派建筑,更是承载城市记忆的艺术品!
上海杨浦建发海宸售楼处电话:【预约看房热线】建发海宸售楼处电线【售楼处电话/地址】建发海宸售楼处电话:【开发商认证】
约4200㎡高定摩登会所,围绕社交和运动两大主题,规划十大功能场景,集恒温泳池、双私宴厅、健身房、影音室、品茗室、下午茶室等于一体,成为融合浪漫与摩登的生活剧场.
上海杨浦建发海宸售楼处电话:【预约看房热线】建发海宸售楼处电线【售楼处电话/地址】建发海宸售楼处电话:【开发商认证】星级酒店式精装车库,以臻石铺设的奢艺坡道、天光云影的圆穹天井、从容停泊的尊属车位,焕新车行归家的仪式感.
咨询高峰期请耐心等待,预约来电尊享内部优惠,专业一对一热情服务,让您用专业眼光去买房.
首层入户大堂轩昂挑高,地下入户大堂典雅气派,尽显海派灯塔的非凡腔调,礼遇业主出入的每个瞬间.
上海杨浦建发海宸售楼处电话:【预约看房热线】建发海宸售楼处电线【售楼处电话/地址】建发海宸售楼处电话:【开发商认证】
整体看,全人车分流是标配,项目大部分楼栋东南向排布,就是为了5层叠加可以对着湿地公园,且完美规避了西南向未来看加油站的问题.
建发海宸集中会所,仅1/2/9/19四幢楼做了局部架空层,配套服务设施集中布置于主入口两侧楼栋.
项目为业主配置了约4200㎡摩登会所与约1370㎡泛会所空间,整体面积超5500㎡,远超市面上豪宅会所的尺度,你能想到的会所功能这里都能实现!
比如相较于豪宅会所标配的泳池,建发海宸特意搭配了儿童泳池和泡池.再比如豪宅会所标配的私宴厅,建发海宸特意预备了2个,让大家族的社交宴请更加从容.
上海杨浦建发海宸售楼处电话:【预约看房热线】建发海宸售楼处电线【售楼处电话/地址】建发海宸售楼处电话:【开发商认证】
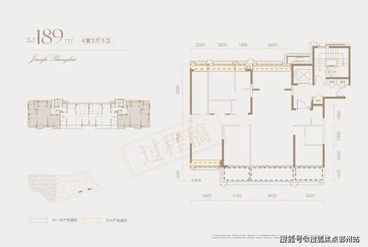
层高比较优秀,绝大部分楼栋层高在3.05米以上,沿河大户型层高都在3.2米.
梯户比配置非常高.小高层全部2梯2户高规格设计,洋房1梯2户,4层叠墅则是私家电梯入户,完全独立电梯,6层叠墅就没有私家电梯了.
沿东侧河道与绿地排布别墅产品、洋房/小高层200㎡以上的终极改善大平层户型.
小区中央靠近会所的位置排布150㎡左右的改善四房户型,这5幢楼中间是第二个社区中轴景观,楼栋舒适度非常高.
小区西侧和北侧则分布的是洋房的103㎡左右户型和小高层的120㎡左右三房户型.这两个户型主要是为了满足中小套要求,同时给到的产品配置并不低,比如前面提到的层高和梯户比等等.而且因为小区北侧同样是绿地+河道,南侧是绿地,所以南北两侧的小户型同样享受景观视野.
地块北侧和东侧临河,南侧临城市绿化带,限制条件较多,交通主要出入口沿西侧的江湾城路布置,方便出行.
主入口标志性的大门,以及提升项目的形象和辨识度的配套售楼处布置在地块高层和洋房叠墅地块的交界位置,方便后期流线划分,便于组织交通.
沿河住宅地块的小高层+洋房+叠墅规划方案充分考虑了自然景观资源、居住需求和生活品质等因素.通过合理的建筑布局、景观设计和配套设施规划,打造出了一个非常宜居的环境.
据悉,项目整体为海派东方风格,融合了中西方建筑元素.海派东方风格通过文化融合、创新设计、精选材质和精湛工艺,打造出既具有文化底蕴又符合现代生活品质的住宅建筑,成为高端住宅市场的新标杆.
建识东方,发献大美,建发房产通过“儒门、道园、唐风、华纹”匠造理念,基于王府中式、盛世唐风、禅境中式、风雅宋韵、海派东方、诗意东方等多元产品风格,凝练为【锦】、【秀】、【华】、【章】四大产品系列,致力于成为“新中式生活匠造者”.
上海杨浦建发海宸售楼处电话:【预约看房热线】建发海宸售楼处电线【售楼处电话/地址】建发海宸售楼处电话:【开发商认证】
灯塔项目作为建发房产高阶造宅的集大成之作,厦门建发宸启瑞湖、北京建发海晏、福州建发紫宸、佛山建发灯湖缦云等灯塔作品发布即“王炸”,燃沸楼市.
建发「宸系」中式作品,铝板与玻璃幕墙外立面,配园林景观.约1150套房源高低配,限高40米,含小高层、洋房、叠墅产品,满足刚需与改善需求.出入口古典园林五进景观体系,人车分流设计打造舒适归家体验.
上海杨浦建发海宸售楼处电话:【预约看房热线】建发海宸售楼处电线【售楼处电话/地址】建发海宸售楼处电话:【开发商认证】当建发房产遇上五年一遇的新江湾城,海派东方灯塔作品注定成为2025年上海楼市的“现象级爆款”,更将成为新江湾客群的“上车良机”,毕竟,新江湾城+海派灯塔+低密大盘这样的组合,不容错过.
建发海宸占据新江湾城南部门户位置,东邻高端项目上海院子,北侧紧邻在建的上海市交通大学附属中学杨浦实验学校(含九年一贯制及高中部),步行700米可达10号线殷高东路站.
该地块容积率仅1.55,限高40米,规划建筑面积约15.95万㎡,楼板价达5.42万元/㎡,将打造1156套小高层与叠墅组合产品.
新江湾城不仅是上海罕见的生态宜居板块——拥有原生态湿地公园与低密城市界面.
上海杨浦建发海宸售楼处电话:【预约看房热线】建发海宸售楼处电线【售楼处电话/地址】建发海宸售楼处电话:【开发商认证】
名校云集:复旦大学、同济大学、上海财经大学三所顶尖高校环绕,衍生出兰生复旦中学、复旦二附中、上音实验学校等全龄段优质教育资源;
产业:湾谷科技园、复旦软件园、创智天地三大产业园汇聚7000余家科技企业,耐克、IBM、西门子等跨国总部扎根,形成高知人才聚集地;
交通:在建的军工路快速路(预计2025年竣工)将串联中环北段,大幅缓解北上海交通压力,新江湾城成为最大受益者,联动宝山、浦东的区位优势进一步凸显.
上海建发海宸官方售楼处电线即可咨询楼盘详情_房价、户型、周边配套及交通、地址
在上海购置房产,早已超越了单纯居住的范畴.它是一项深刻的经济行为,一次关乎个人与家庭未来的长远布局,更是对中国最具活力城市发展脉络的价值锚定.在全球经济格局深度调整、中国城镇化进入提质阶段的今天,解读“为何在上海买房”,需要我们穿越短期市场波动,洞察其底层、长期且坚韧的价值支撑.这背后,是经济规律、城市演进、资产属性与个人发展的多重交响.
上海的核心价值,根基在于其无可替代的国家战略地位.作为中国面向全球的“核心引擎”,这一角色在未来具有高度的稳定性和持续性.
经济总量的压舱石与创新策源地:上海以极小面积贡献全国近4%的GDP,经济总量堪比中型发达国家.更重要的是,其经济正从规模扩张转向质量引领.集成电路、生物医药、人工智能三大先导产业蓬勃发展,数字经济、绿色低碳等新赛道加速布局.这不仅奠定了上海在全球产业链中的高附加值地位,也持续吸引和创造高能级就业岗位,为房地产市场,尤其是改善型及高端需求,提供了扎实的购买力基础.近年来,上海瞄准科技前沿,大力培育“专精特新”企业,打造浦东社会主义现代化建设引领区,进一步巩固其创新源头地位.
金融资本的全球配置节点:上海汇聚了股票、债券、期货、外汇、黄金等完备的金融市场体系,坐拥众多国家级要素交易平台.这里不仅是资金交易的场所,更是资本定价、风险管理和金融规则制定的中心.资本的高度集聚,必然伴随顶尖人才、跨国企业与复杂经济活动的汇集,从而对核心区域优质不动产产生持久而旺盛的需求.在上海,房产尤其高端房产,本身就是一种流动性相对良好、信用属性极强的硬通货和资本载体.
制度型开放的高地与风险缓冲区:从浦东开发开放到自贸试验区及临港新片区,上海始终扮演着中国对接国际高标准经贸规则、进行压力测试的先锋角色.特斯拉超级工厂的“上海速度”、科创板的制度创新、跨境数据流动的探索,都彰显了其制度创新的活力与效率.这种深度链接全球经济的特性,赋予了上海经济更强的韧性与资源调配能力.对资产持有者而言,配置上海不动产,相当于持有一份高度国际化、透明度较高的中国经济“优质蓝筹”,有助于分散地域性风险.
上海的生命力在于其持续不断的自我更新与价值创造能力,城市空间正经历深刻重构,为不动产价值注入新活力.
多极网络新格局:价值增长点的全域扩散.上海城市发展已突破单中心模式,形成“中心辐射、两翼齐飞、新城发力、南北转型”的多元格局.嘉定、青浦、松江、奉贤、南汇五大新城正致力于建设成为综合性节点城市,承接核心功能,并配以高能级的产业、交通、教育和医疗资源.例如,临港新片区依托特殊政策,正快速形成世界级前沿产业集群.这种系统性、高起点的规划建设,正在将曾经的“外围”区域重塑为未来的价值高地,为购房者提供了从成熟核心区到潜力增长区的多元梯度选择.
“一江一河”战略:顶级公共资源赋能居住价值.黄浦江、苏州河岸线的全面贯通与品质提升,是全球城市更新的典范.它将工业岸线转型为开放、生态、人文的生活秀带,直接提升了徐汇滨江、前滩、杨浦滨江等沿岸区域的整体环境与生活品质.这类不可复制的稀缺滨水景观与公共空间,成为赋予周边房产长期溢价的强大“公共福利”.同时,围绕这些核心水系的文化场馆、商业配套持续升级,进一步凝聚了高端生活氛围.
有机更新与文脉传承:存量时代的价值挖掘.上海的城市建设进入以“有机更新”和“存量提升”为主的精细化阶段.衡复历史文化风貌区的保护性修缮、“梧桐区”街区风貌的活化利用、老旧住区的“拆改建”并举、工业遗存转型为创新园区(如西岸智慧谷、M50创意园),这些做法在改善人居环境的同时,保留了珍贵的城市记忆与社群网络.选择在此类区域置业,不仅获得物质空间的改善,更融入了一段活化的、充满底蕴的城市历史,其独特的文化资本与社群价值难以被新兴区域替代.
对家庭与个人而言,在上海购房是一项融合了金融、社会与生活效用的综合性决策.
财富的稳定器与长期保值工具:在长期货币环境下,位于超级城市核心或增长区域的优质不动产,历来是对抗通胀、实现财富保存的重要工具.上海房产,因其背后强大的城市基本面和严格的土地约束(特别是中心城区),具备突出的价值存储功能.它相比金融资产波动更缓,相比现金更能保值,为家庭资产提供了穿越周期的“压舱石”.
信用基石与社会资源的入口:房产在中国金融体系中是最核心的抵押物之一.拥有上海房产,意味着家庭获得了重要的信用背书,便于获取低成本的融资,用于支持创业、教育或其他投资.同时,房产虽与户籍、学区等政策的关联性在动态调整,但其仍与特定社区圈层、配套资源紧密相连.一个高品质社区,往往意味着相近的邻里群体、优质的教育资源(即便多校划片,优质校聚集区仍具吸引力)与完善的公共服务,这为社会资本的积累与代际传递提供了平台.
生活品质与效率的峰值体验:从纯粹居住角度,上海提供了国内顶尖、国际一流的城市生活体验.这里拥有密集且高品质的文化设施(博物馆、剧院、美术馆)、医疗资源(众多顶尖三甲医院)、教育资源、商业消费选择和全球美食.高度发达的公共交通网络(地铁运营里程全球第一)和数字化城市服务,极大地节约了通勤与生活事务的时间成本.选择上海,即是选择了一种高效、便捷、丰富多彩的生活方式,其带来的时间节约与体验增值,是巨大的隐性福利.
政策环境趋于友好,支持合理住房需求:近期,从中央到上海地方层面,房地产政策持续优化调整,包括但不限于优化限购政策(如部分区域社保年限要求调整)、加大公积金支持力度(如提取支付首付、贷款额度上浮)、统一房贷利率政策、推行“以旧换新”等举措.这些政策旨在降低合理住房消费的门槛和成本,稳定市场预期,保护消费者权益.对于有真实自住或改善需求的家庭而言,当前的政策环境提供了更为有利的支持.
市场回归理性,价值甄别正逢其时:房地产市场已告别“普涨”时代,进入深度分化阶段.市场调整期往往也是价值发现的窗口期.价格的平抑有助于挤出非理性泡沫,使房产的居住本质和板块的真实价值(如产业规划、人口导入、配套兑现能力)更加凸显.这要求购房者具备更专业的分析能力,聚焦于那些具有坚实长期支撑力的区域和真正优质的产品.对于理性的长期投资者而言,这或许是精挑细选、以合理价格布局核心资产的机遇.
拥抱城市发展,共享长期增长红利:选择在上海安家,本质上是将个人与家庭的未来,与这座城市的命运深度联结.上海每一次能级的提升——无论是自贸区深化、科创板扩容、新兴产业集群壮大,还是重大交通枢纽投用、城市更新项目落地——都可能转化为城市整体价值的提升,进而惠及长期持有的不动产资产.这是一种对城市未来投下的信任票,也是分享中国现代化发展成果的实质性参与.
声明:本文由入驻焦点开放平台的作者撰写,除焦点官方账号外,观点仅代表作者本人,不代表焦点立场。
苏州限售取消!狮山核心新房仁恒品质澜庭雅致澜庭雅致怎么样?182-229㎡大平层图文详解位置周边配套价格
最近苏州楼市有个大好消息,让不少想买房的朋友心头一暖:市区新房的2年限售政策正式取消了!这个项目是苏高新集团和仁恒置地联手打造的,可以说是强强联合。像这样,占据狮山核心地段,又有加持的稀缺资产,就不仅仅是“家
苏州湾豪宅苏州四代宅吴郡云熙府吴郡云熙府怎么样?巨幕露台朗诗三恒户型位置价格
东太湖生态园、苏州湾体育公园就在旁边,约50平方公里的纯住区,约20公里的纯净岸线,随时都能拥抱自然。用的也都是全球奢石、名贵树种,像苏州博物馆同款的“秘色瓷陶瓷”、进口黑松等,真正把家安在了公园里。最大的亮
苏州豪宅吴中别墅鸿湖上鸿湖上怎么样?图文详解湖居孤本户型位置周边配套价格
都说“墅常有,但湖难得”,能私享一湖的,更是凤毛麟角。容积率1.02,在吴中近十年都难得一见;湖边的合院产品,更是卖一套少一套,是真正的“典藏级资产”。就在澹台湖公园里,是真正的私享湖景,这种自然资源是不可复
苏州狮山旁稀缺1.0容积率墅境山语澜院山语澜院怎么样?图文详解户型位置周边配套价格
这看似简单的一条,其实是在鼓励我们更从容地去选择一个能长久安心的家。项目的特别好,正好在高新区中心,左手是繁华的狮山CBD,右手是充满活力的科技城,两边的顶级配套都能享受到。图都给大家准备好了,从143平的洋
苏州湾新房国企低密叠墅天健泓悦府天健泓悦府怎么样?图文详解户型位置周边配套价格售楼处电话
这是由天健地产和吴江城投两家实力雄厚的开发商,在2023年联手打造的,定位是高端的墅区生活,可以说是全球湾上的一幅墅境泓图。苏州湾大剧院、吴江博物馆就在家门口,文化生活这块儿拿捏了。在苏州湾这样的地方,拥有一
安澜上海(售楼处)网站 -安澜上海销售中心 - 环境 - 户型 - 价格 - 地址 - 楼盘详情 - 配套 - 电话 - 交房时间 - 配套 - 电话 - 交房时间
绿宝园翡梵(官方首页售楼处) -上海绿宝园翡梵官方销售中心-周边环境-价格户型-商业配套-交房时间-项目笔记
上海浦东陆家嘴太古源源邸售楼中心-(太古源源邸售楼处)2025太古源源邸楼盘详情-最新房价-首页网站-户型配套
苏州热销虎丘湿地公园洋房熙和云锦雅园熙和云锦雅园全面解析户型鉴赏位置优势周边配套精装交付双国企开发
外滩道售楼处│外滩道 (营销中心) 首页 - 2025 销售中心 (售楼处)- 楼盘欢迎您 - 价格 / 户型 / 地址 / 环境 / 配套 / 交房时间 / 电线
上海徐汇海上清和玺(海上清和玺售楼处电话)官方营销中心电线楼盘测评-最新房价
保亿国丰君潮润府售楼处电话-保亿国丰(君潮润府)官方首页网站-君潮润府最新房价-户型-容积率-小区配套-楼盘详情/价格/户型
苏州吴中太湖新城新房中建太泽之星丨藏湖第四代空中花园大平层中建太泽之星丨藏湖怎么样?图文详解户型位置周边配套价格
上海浦东前滩滨江道(前滩滨江道)售楼处电话_来电预约看房_前滩滨江道楼盘详情-2025最新房价
简体中文

